本次為公司辦公室設計方案,辦公室設計面積800平方,設計師在辦公室設計中,以現代、簡約為辦公室設計關鍵詞,目的就是希望打造一個舒適、實用、便捷的辦公空間。
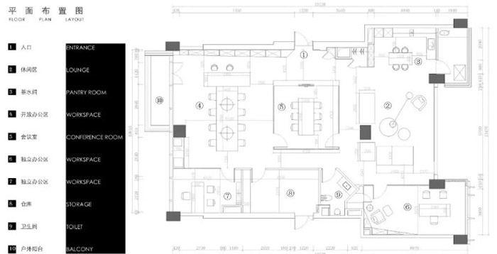
▼公司辦公室平面圖

▼公司辦公室進門區

▼公司辦公室入口

▼公司辦公室接待區

▼公司辦公室接待區

▼公司辦公室接待區

▼公司辦公室過道

▼公司辦公室會議室

▼公司辦公室會議室

▼公司辦公室會議室

▼公司辦公室走廊

▼公司辦公室辦公區

▼公司辦公室辦公區

▼公司辦公室辦公區

▼公司經理辦公室

▼公司經理辦公室

▼公司經理辦公室

▼公司經理辦公室

▼公司辦公室茶水間

▼公司辦公室茶水間

▼公司辦公室茶水間

▼公司總經理辦公室

▼公司總經理辦公室

▼公司總經理辦公室

▼公司總經理辦公室

▼公司總經理辦公室

本次公司辦公室設計方案講解到此結束,設計師在辦公室設計中,以現代、簡約為辦公室設計關鍵詞,目的就是希望打造一個舒適、實用、便捷的辦公空間。