
圖紙目錄:
圖紙目錄1

圖紙目錄2

圖紙目錄3

圖紙目錄4

圖紙目錄5

圖紙目錄6

圖紙目錄7

圖紙目錄8

材料表:
材料表1

材料表2

施工說明、圖面符號說明:
施工說明1

施工說明2

圖面符號說明

一層、二層、三層、四層平面布置圖:
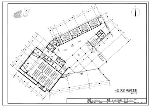
一層A區平面布置圖

一層B區平面布置圖

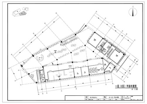
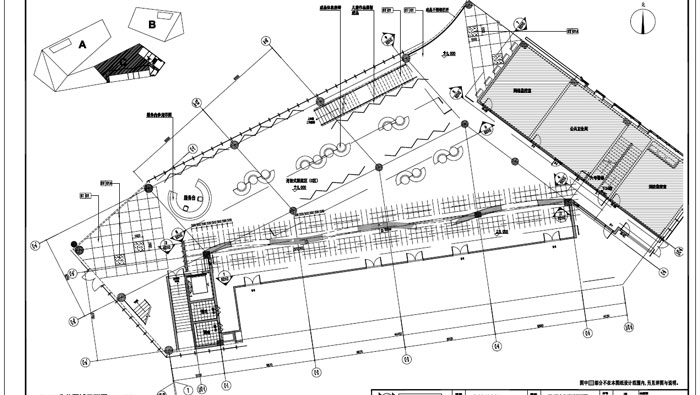
一層C區平面布置圖

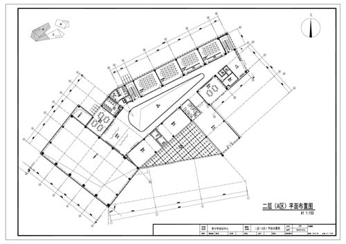
二層A區平面布置圖

二層B區平面布置圖

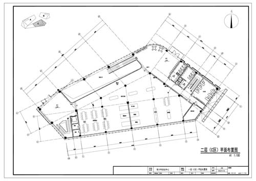
二層C區平面布置圖

三層A區平面布置圖

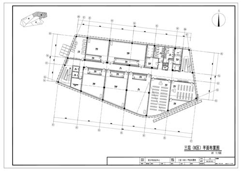
三層B區平面布置圖

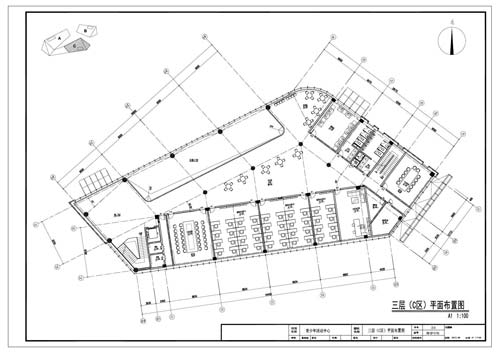
三層C區平面布置圖

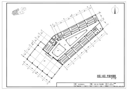
四層A區平面布置圖

一層、二層、三層、四層綜合頂面圖:
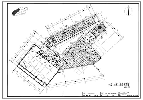
一層A區綜合頂面圖

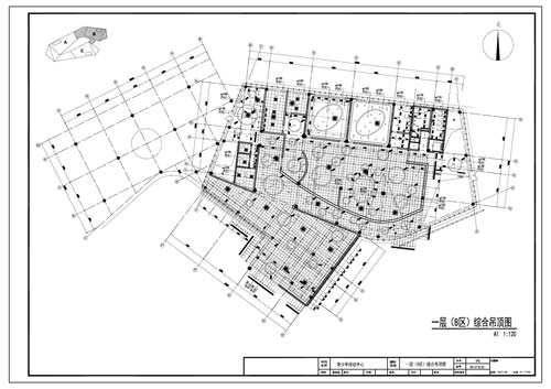
一層B區綜合頂面圖

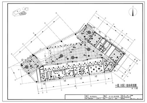
一層C區綜合頂面圖

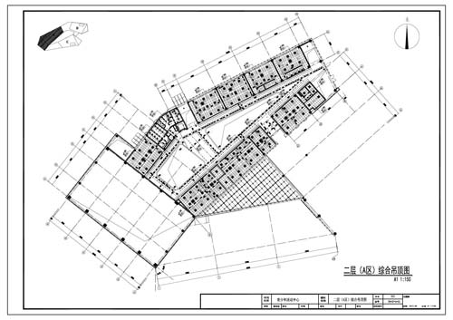
二層A區綜合頂面圖

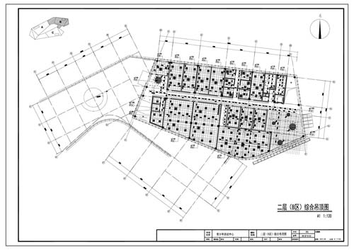
二層B區綜合頂面圖

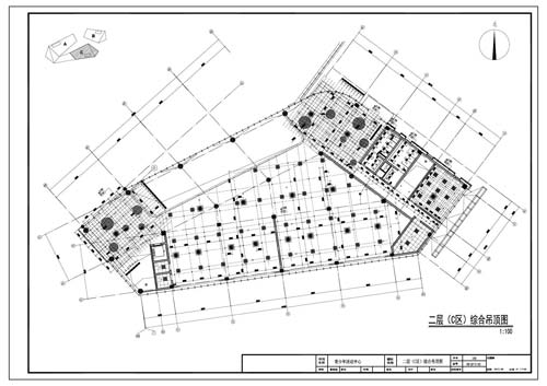
二層C區綜合頂面圖

三層A區綜合頂面圖

三層B區綜合頂面圖

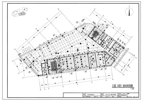
三層C區綜合頂面圖

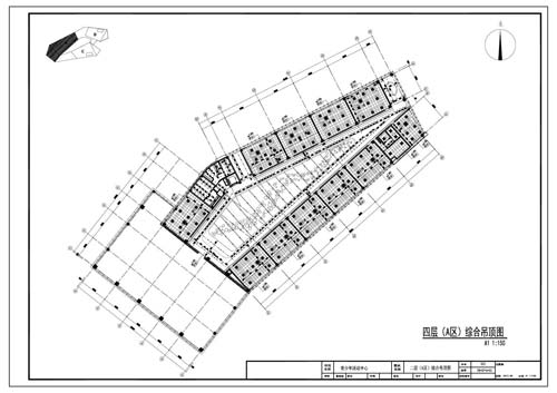
四層A區綜合頂面圖

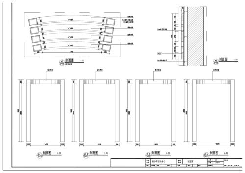
A區小劇場節點:
A區小劇院節點

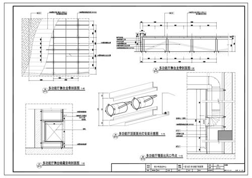
多功能廳吊燈刨面節點

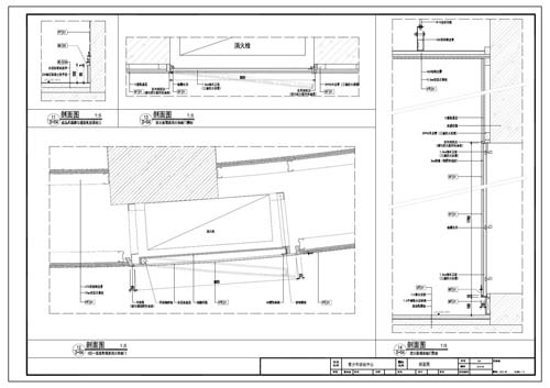
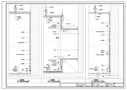
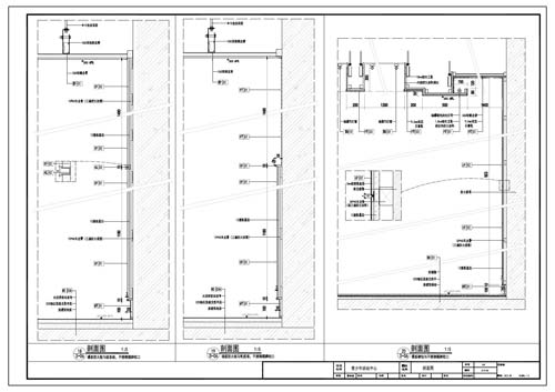
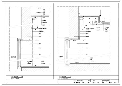
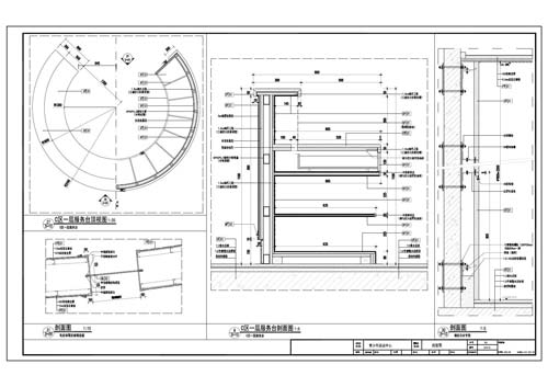
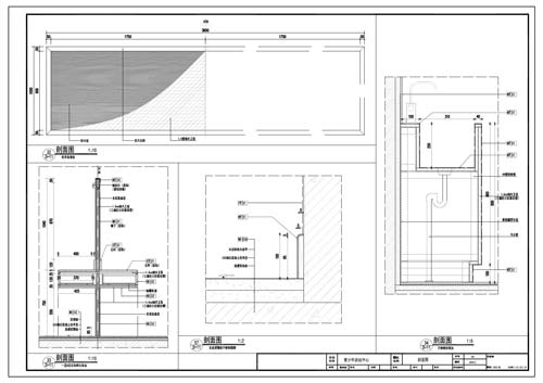
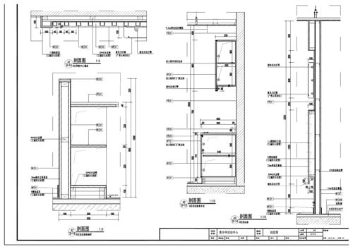
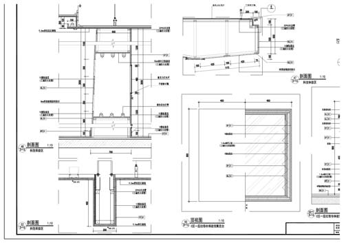
節點大樣刨面圖(一):
節點大樣刨面圖1-3

節點大樣刨面圖4-6

節點大樣刨面圖7-10

節點大樣刨面圖11-14

節點大樣刨面圖15-17

節點大樣刨面圖18-20

節點大樣刨面圖21-24

節點大樣刨面圖25-26

節點大樣刨面圖27、30、31

節點大樣刨面圖28、29、51

節點大樣刨面圖33、34、57

節點大樣刨面圖43、44

節點大樣刨面圖45、46

節點大樣刨面圖47-52

節點大樣刨面圖49

C區1層紅領巾體驗館:
C區1層紅領巾體驗館平面圖

C區1層紅領巾體驗館頂面圖

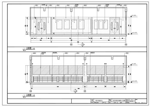
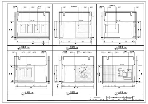
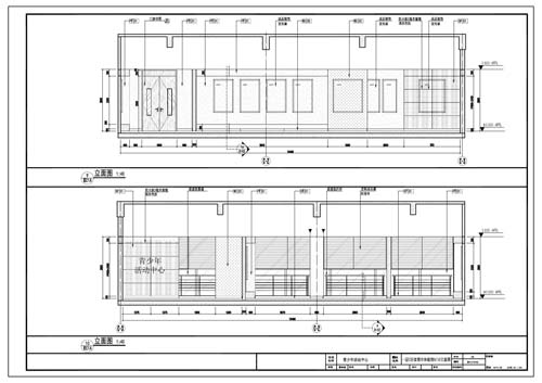
C區1層紅領巾體驗館立面圖1-2

C區1層紅領巾體驗館立面圖3-8

C區1層紅領巾體驗館立面圖9-10

C區1層公共區域:
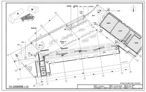
C區1層公共區域平面圖

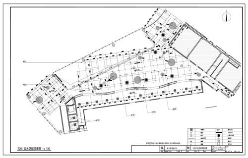
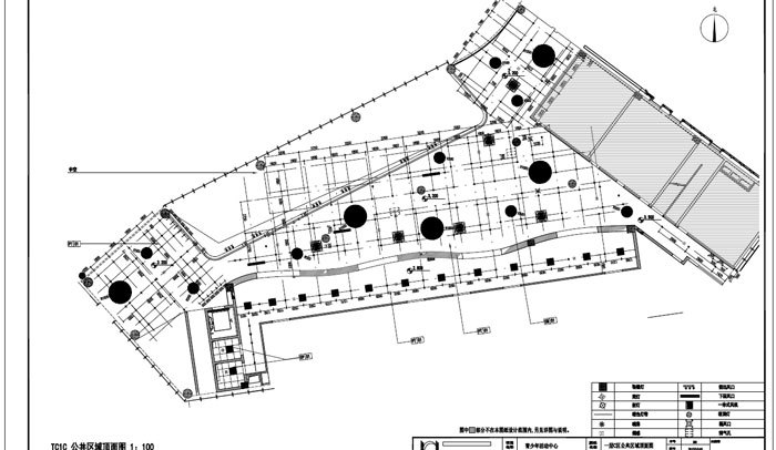
C區1層公共區域頂面圖

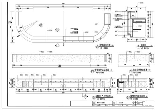
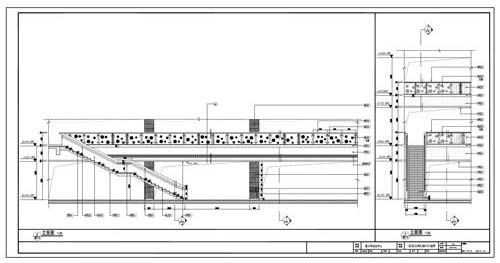
C區1層公共區域1/2立面圖

C區1層公共區域3/4/7立面圖

C區1層公共區域5/6立面圖

C區1層公共區域8/9立面圖

未完,請關注:青少年活動中心深化設計施工圖(2)